Cover

Edna

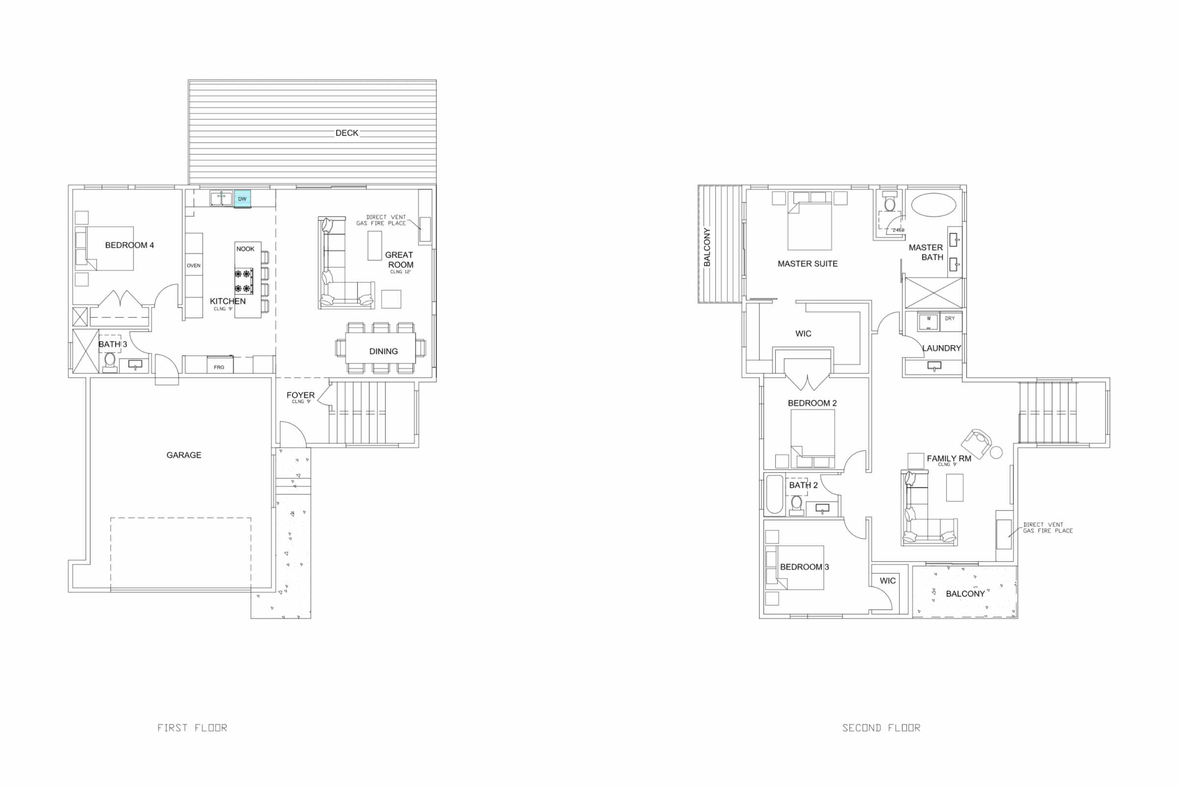
  • 4 bed
  • 3 bath
  • 2 car garage
  • 2370 sq. feet

Existing models can be modified and customized to your needs.

Come home to Edna, a chic mountain design where family living matters. It’s about lifestyle and space, where everyone is welcome and yet privacy is still valued. You’ll enjoy a special place, where you can entertain with ease or shut off and relax.

Edna features an open kitchen and living spaces with wide windows to enjoy the outdoors in the comfort of your home. Enjoy a bath with a view in a master bathroom that features unique fittings and twin basins. The master suite features walk-in closets and a stroll out to the deck. Your guests or kids will enjoy plenty of space, with separate living areas connected to large decks. It’s Tahoe for all your loved ones.

Built & Designed by SHEMSS

Side

Ready to Evolve?

The Home of the Future is Waiting for You

Get a quote

What We Do

Finding a Lot

Selecting a lot is an exciting and potentially daunting first step in the construction process. With decades of experience in new builds, SHEMSS is well versed in the intricacies of site selection. We will make sure that your new home finds its perfect footing. Our extended network includes realtors, surveyors, and specialists who are key assets to our team.

Designing Your Home

Step two is where the fun really begins, the designing of your dream home. We offer several base designs that are fully customizable to create a unique space that fits your lifestyle and expresses who you are. Our clients can choose to be as “hands-on” or as “hands-off” as they wish. Our process is tailored to be streamlined, innovative, and fun.

Applying for Permits

At SHEMSS, we’re pros at efficiently navigating through the permit process. With decades of building experience and hundreds of state and local code inspections passed translate to a painless build with minimal hold-ups.

Building Your Home

Buckle up! Once the site work is complete, the countdown begins. In as little as seven months you could be living in your new SHEMSS home. Blink and you just might miss it.

Specs


Floor plan
Features
  • Expansive 574 SF of Glass Windows and Doors
  • “The Fall of Light” Haidas
  • Architectural Awnings
  • LED Lighting
  • Spacious Master Suite and Bedrooms
  • Open Concept Entertaining

Specifications
  • 4 bed
  • 3 bath
  • 2 car garage
  • 2370 sq. feet

Options
  • Classic Roof or Modern Roof
  • Multiple Cabinets Styles
  • Appliance upgrades
  • Solar upgrade
  • Multiple flooring choices
  • Multiple countertop choices
  • NanaWall
  • Siding upgrade

We Build Faster

SHEMSS, moving at a pace of modern living.

By choosing SHEMSS Homes, you’ve signed up to be at the forefront of a progressive movement disrupting the construction industry.

We're flipping the traditional notion of what it means to build a home on its head. This means no more:

  • Delays
  • Stress
  • Red tape
  • Hidden costs
  • Confusion

We provide a simple path to an affordable, thoughtfully designed home without the headaches of traditional builds. You spend less time worrying and get into your new home sooner!

  • SHEMSS home
  • New custom home
  • New custom home teardown